Plan

HIRAYA【プランE】

Plan Data

家族構成
2人~人(ペット可)
価格
2300万円(税別)から
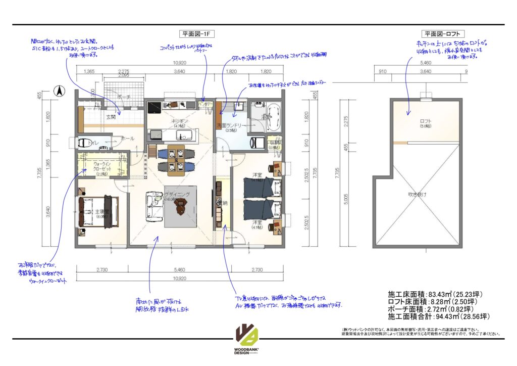
間取り
3LDK
仕様
🏡 Smooth(スムース)平屋 間取り紹介 🌿

🌞 ダイニング(16帖)
無垢の床が心地よく、家族が自然と集まる広々リビング。
大きな窓から光がたっぷり入り、外の景色も楽しめます✨
キッチンは対面式で、家事をしながら家族の会話も弾みます🍳
リビングダイニングの天井は勾配天井でより開放的に。

🛏 主寝室(6帖)
落ち着いた色合いで、ゆっくりと休める寝室。
ウォークインクローゼット付きで収納もたっぷり👚

👧 子ども部屋(4.1帖×2部屋)
兄弟それぞれの空間を確保。
勉強も遊びもできる、ちょうどいいサイズ感🎒

🌿 ロフト(5帖)
趣味スペースや季節の収納にぴったり!
お子さんの“秘密基地”にも人気です✨

間取り

鳥瞰図

内観パース

お電話でもお問い合わせ受付
0120-335-888

受付時間 9:00-17:00

見学会・相談会
EVENT
ウーブのモデルハウスを触って体感
WOO’VE STYLE